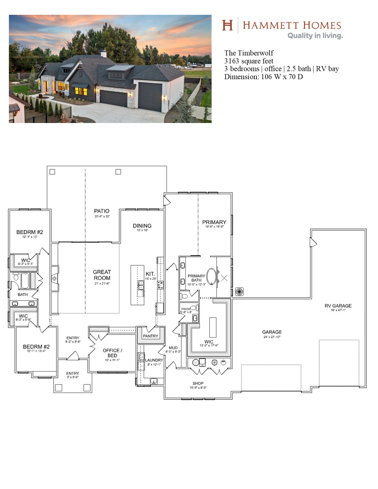
Hammett Homes presents The Timberwolf. This is grand single level with RV bay features an open floor plan is great for entertaining with lots of natural light that floods the home thanks to many windows and soaring vaulted ceilings. The primary suite is large and features a large freestanding soaker tub, split vanities, and huge walk in closet. The secondary bedrooms are on the opposite side of the home. There is an office or a 4th bedroom for flexibilty. Plus a large covered back patio.
3D Virtual Tour- The Timberwolf
Movie Video
Schedule Today
