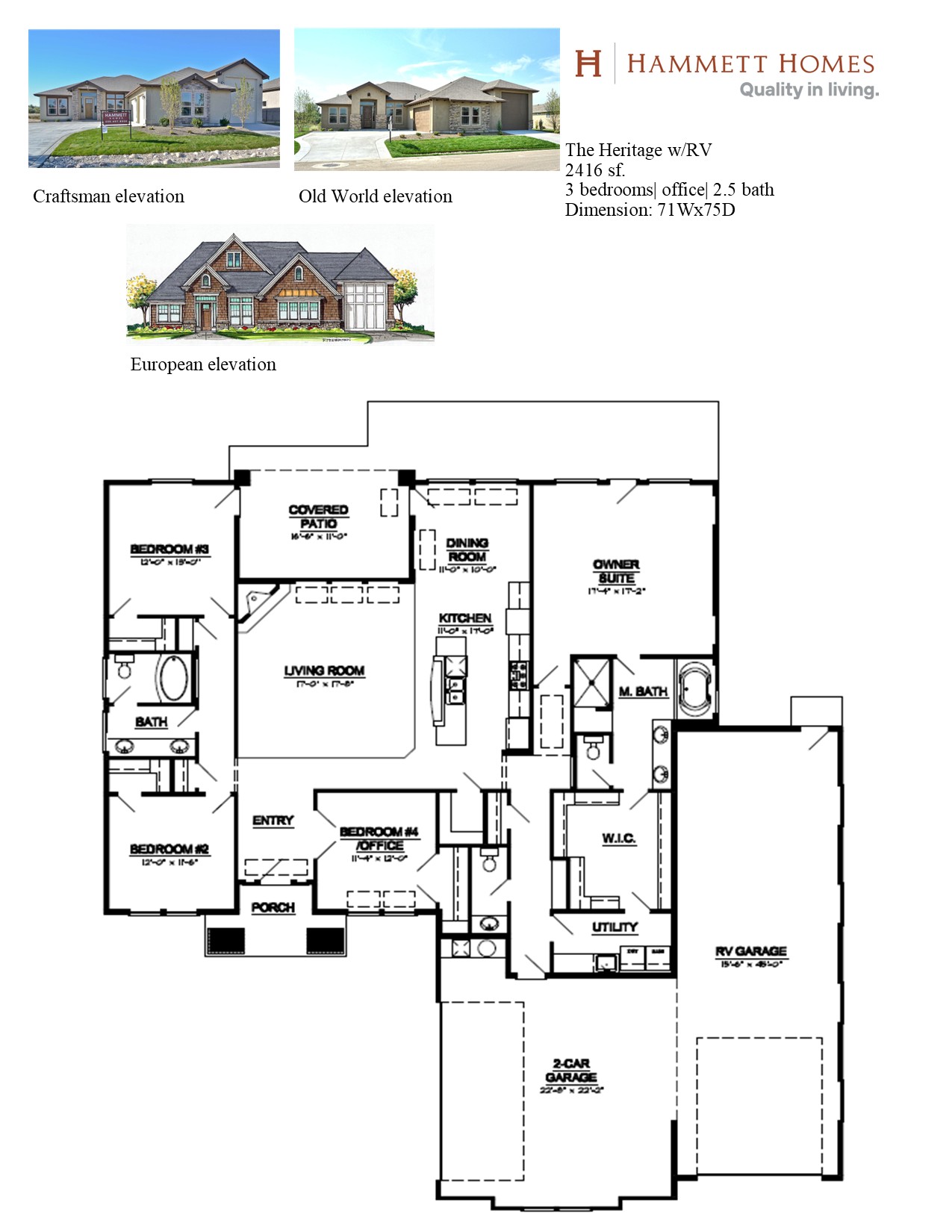
Hammett Homes presents, The Heritage. This quality home is a beautiful single level space offers luxury throughout. The Heritage comes complete with custom cabinets, granite countertops, Bosch appliances, hardwood floors and a master tile walk in shower. The RV garage offers a ton of storage opportunities. This thoughtful open floor plan has large windows and is ideal for entertaining!
Schedule Today
